WONEN OP DE DONK

Eind 2017 heeft de gemeenteraad besloten een centrumvisie te laten maken voor Den Dungen.

Begin 2018 is aan Arie Hoogstad de opdracht gegeven een breed gedragen stedenbouwkundige visie te maken.

Inwoners, ondernemers en organisaties uit Den Dungen hebben meegedacht over de toekomst van hun dorp. Hoe ziet Den Dungen er in de toekomst uit?

Na diverse informatieve bijeenkomsten, inloopdagen en beantwoording van de diverse ingediende zienswijzen heeft In oktober 2019  de gemeenteraad de ‘Visie Ruimtelijke Ontwikkeling Den Dungen’ unaniem vastgesteld. In de visie zijn de belangrijkste uitgangspunten voor de openbare ruimte: compact, compleet en comfortabel. Van 17 januari tot en met  28 februari 2020 heeft de visie ter inzage gelegen.

Voortbordurend op deze gedachte is aan de Donksestraat een kleinschalig plan ontwikkeld.

 

 

                                   Wonen op de Donk: groen en duurzaam.

 

Een duurzame, groene, ruim opgezette woonwijk en toch ook dicht bij het centrum, kan dat? Ja dat kan!

         In Den Dungen wordt de komende jaren achter Donksestraat 19 de unieke woonwijk Wonen op de Donk ontwikkeld. Een prachtige landschappelijke wijkje dat centraal in Den Dungen ligt. Het wordt een vriendelijk en duurzaam wijkje met diverse woonmilieus. Behalve koopwoningen komen er ook huurwoningen. Wonen op de Donk zal zich bovendien opvallend van andere nieuwbouwwijken onderscheiden door een hoge kwaliteit. De verscheidenheid in woningtypen en leefstijlen brengt het wijkje nieuwe dynamiek.

Voor alle woningen geldt natuur-inclusief bouwen.

 

Tijdens de recente economische crisis steeg het aantal huishoudens sneller dan dat er woningen werden bijgebouwd. Er moet daardoor nog een flinke inhaalslag gemaakt worden (bron EIB). Woningen voor senioren, 1 of 2 persoonshuishoudens en levensbestendige woningen zijn een belangrijk onderdeel van de nieuwbouw opgave daarbij zijn er ook vrijstaande kavels van +/-500m2 aan het plan toegevoegd.

 

ENERGIEZUINIG

 

De woningen zijn zeer goed geïsoleerd. En de meeste huizen zullen voorzien zijn van zonnepanelen waarmee zoveel energie wordt opgewekt dat u, afhankelijk van uw eigen verbruik, geen energie meer hoeft te kopen. De woningen hebben daarom dan ook geen gasaansluiting meer. Enerzijds voor de veiligheid maar ook omdat het gebruik van fossiele brandstoffen eindig is.

. Daarnaast bestaat de mogelijkheid bij uw parkeerplaats een eigen laadpaal te plaatsen waarmee de auto kan worden opgeladen. U heeft tenslotte toch waarschijnlijk energie over afkomstig van uw zonnepanelen.

 

SCHOON WATERAFVOER

 

Meestal voeren we regenwater af via het riool, waardoor het meteen uit het zicht van de bewoner verdwijnt. Een bovengrondse afvoer van regenwater maakt het water weer zichtbaar.

Een goot is een eenvoudige vorm van bovengrondse waterafvoer voor toepassing op straat of vanaf de woning in de tuin. Bij de realisatie van een wijk met open goten en zonder regenwaterriool is het van belang dat er voldoende afschot in de wijk is voor het bovengrondse regenwatersysteem. De hoogteprofilering in het nieuwbouw wijkje  moet hierop worden afgestemd. Het water dat via de goot afstroomt voeren we af naar een wadi waar het tijd heeft om te infiltreren en bij overtollige regen een overloop heeft naar  het oppervlaktewater.

 

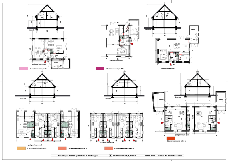
Er komen geen zelfbouwkavels, er komen 3 tot 4 soorten vrijstaande  woningen. Deze worden door een nog aan te wijzen aannemer gebouwd met hoge eigen inbreng.

Er is op dit moment niet meer dan de plattegrond op de website, we gaan nu verder met de vergunning procedures, het slopen en het bouwrijp maken van het perceel. Ook worden de verkoop tekeningen gemaakt, deze zullen  eind  Q1 gereed zijn. Dan wordt de verkoop/verhuur procedure opgestart in Q2, er komen advertenties in eerste instantie in weekblad de Brug en het wordt vermeld op de website.  Dan wordt ook de prijzen bekend gemaakt en hoe en waar je kunt inschrijven, dit is helaas nu nog niet mogelijk. 

Zijn er meerdere geïnteresseerden in hetzelfde huis vindt er een loting plaats bij een notaris. 

massa schets

Agrarisch bedrijf Donksestraat

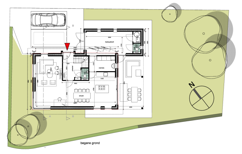
 plattegrond woningen, straatnamen 

concept plattegronden

alternatieve ontsluiting 

referentie vrijstaande woningen

Basis vrijstaande woning Reigerlaan 6-8-11 en Reigerhof 6-8-10-12

Kan met pannen, riet of stalen dak.

Voor opmerkingen verdere informatie of vragen kunt u gebruik maken van onderstaand formulier.

Dit is geen inschrijfformulier voor het plan.